物件詳細
ホーム > 物件詳細
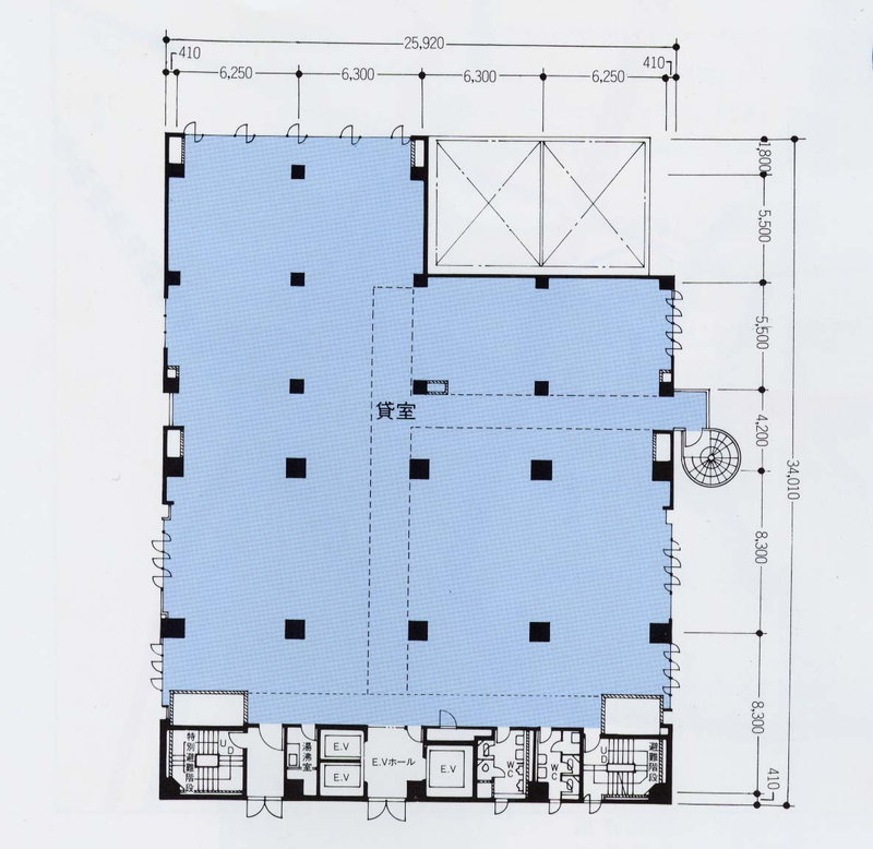
募集要項
| 階数 | 区画 | 面積 | 賃料 共益費 |
敷金 礼金 |
引渡し時期 引渡し方法 |
|---|---|---|---|---|---|
| 2階 | 55.21坪(182.51㎡) |
相談
相談 |
(12ヶ月)
- |
2026年02月01日以降
事務所仕上げ |
| 備考 |
|
|---|
同じ建物の空室案内
| 階 | 区画 | 面積 | 賃料 | 用途 | |
|---|---|---|---|---|---|
| 10階 | 37.58坪(124.23㎡) | 相談 |
|
物件所在地
この物件について問い合わせする
まずはご相談内容をお送りください。確認後に担当者よりご連絡させていただきます。

MAPを見る
