物件詳細
ホーム > 物件詳細
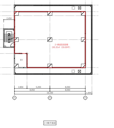
募集要項
| 階数 | 区画 | 面積 | 賃料 共益費 |
敷金 礼金 |
引渡し時期 引渡し方法 |
|---|---|---|---|---|---|
| 9階 | ワンフロア | 59.09坪(195.35㎡) |
1,072,483円(税込)
- |
(3ヶ月)
- |
即時 スケルトン |
| 備考 |
警備料:6,000円/月 看板使用料:10,000円/月 ごみ処理費:別途 初回看板作成料:50,000円 フリーレント3ヶ月、内装負担1ヶ月 |
|---|
- 飲食店可
物件所在地
この物件について問い合わせする
まずはご相談内容をお送りください。確認後に担当者よりご連絡させていただきます。

MAPを見る
