物件詳細
ホーム > 物件詳細
募集要項
| 階数 | 区画 | 面積 | 賃料 共益費 |
敷金 礼金 |
引渡し時期 引渡し方法 |
|---|---|---|---|---|---|
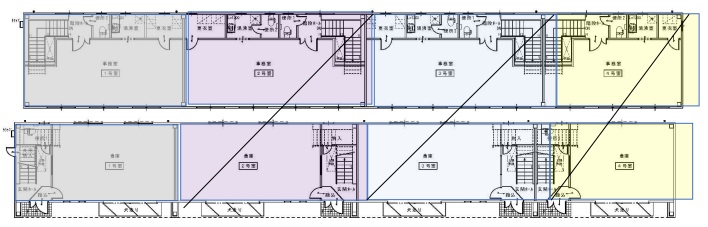
| 1階 〜 2階 | 1 号室 | 36.2坪(119.7㎡) |
316,800円(税込)
- |
(6ヶ月)
- |
2026年09月01日以降
事務所仕上げ |
| 備考 |
駐車場5台付き OAフロア 1階 54.6㎡/16.5坪 倉庫 2階 65.1㎡/19.7坪 事務所 合計 119.7㎡/36.21坪 |
|---|
- 倉庫付き事務所
物件所在地
この物件について問い合わせする
まずはご相談内容をお送りください。確認後に担当者よりご連絡させていただきます。

MAPを見る

