物件詳細
ホーム > 物件詳細
募集要項
| 階数 | 区画 | 面積 | 賃料 共益費 |
敷金 礼金 |
引渡し時期 引渡し方法 |
|---|---|---|---|---|---|
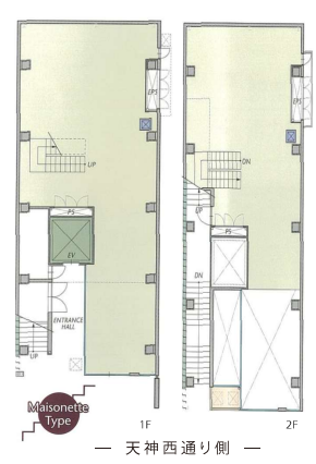
| 1階 〜 2階 | 50.25坪(166.14㎡) |
4,146,450円(税込)
- |
(12ヶ月)
- |
即時 スケルトン |
| 備考 |
看板使用料別途 1階:28.66坪 2階:21.6坪 軽飲食相談(カフェ程度) 定借年数相談可 |
|---|
- 飲食店可
物件所在地
この物件について問い合わせする
まずはご相談内容をお送りください。確認後に担当者よりご連絡させていただきます。

MAPを見る



