物件詳細
ホーム > 物件詳細
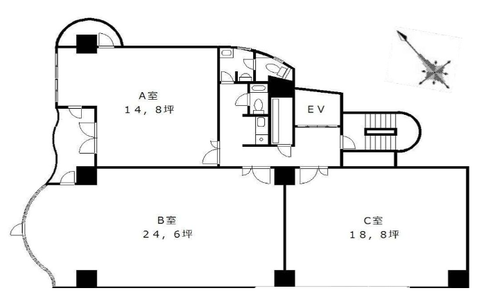
募集要項
| 階数 | 区画 | 面積 | 賃料 共益費 |
敷金 礼金 |
引渡し時期 引渡し方法 |
|---|---|---|---|---|---|
| 5階 | C 区画 | 18.8坪(62.15㎡) |
144,760円(税込)
41,360円(税込) |
(6ヶ月)
- |
2026/2/末 事務所仕上げ |
| 備考 |
|
|---|
物件所在地
この物件について問い合わせする
まずはご相談内容をお送りください。確認後に担当者よりご連絡させていただきます。

MAPを見る


