物件詳細
Home > 物件詳細
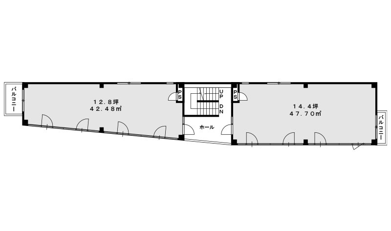
募集要項
| 階数 | 区画 | 面積 | 賃料 共益費 |
敷金 礼金 |
引渡し時期 引渡し方法 |
|---|---|---|---|---|---|
| 3階 | 3-A 区画 | 14.43坪(47.7㎡) |
182,539円(税込)
9,523円(税込) |
(3ヶ月)
- |
即時 スケルトン |
| 備考 |
|
|---|
- 飲食店可
物件所在地
この物件について問い合わせする
まずはご相談内容をお送りください。確認後に担当者よりご連絡させていただきます。

MAPを見る
