物件詳細
ホーム > 物件詳細
募集要項
| 階数 | 区画 | 面積 | 賃料 共益費 |
敷金 礼金 |
引渡し時期 引渡し方法 |
|---|---|---|---|---|---|
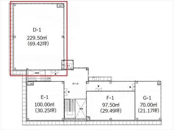
| 2階 | D-1 号室 | 69.42坪(229.5㎡) |
839,982円(税込)
- |
(6ヶ月)
- |
2026年05月01日以降
スケルトン |
| 備考 |
|
|---|
- 飲食店可
物件所在地
この物件について問い合わせする
まずはご相談内容をお送りください。確認後に担当者よりご連絡させていただきます。

MAPを見る



