物件詳細
        
ホーム > 物件詳細
            
        募集要項
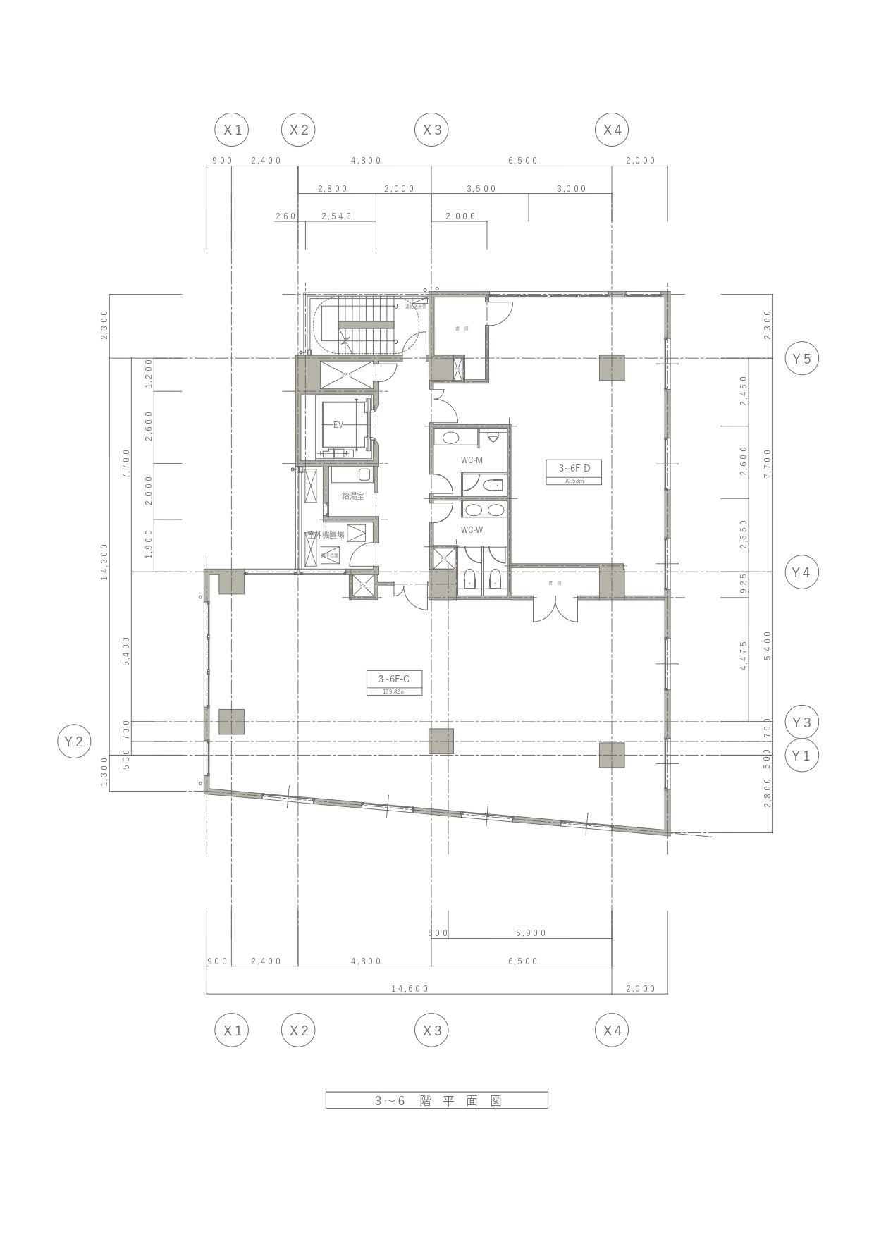
| 階数 | 区画 | 面積 | 賃料 共益費  | 
敷金 礼金  | 
引渡し時期 引渡し方法  | 
|---|---|---|---|---|---|
| 4階 | C | 42.29坪(139.82㎡) | 
697,785円(税込)
 93,038円(税込)  | 
(4ヶ月)
 -  | 
即時																									 事務所仕上げ  | 
| 備考 | 
 | 
|---|
物件所在地
この物件について問い合わせする
まずはご相談内容をお送りください。確認後に担当者よりご連絡させていただきます。

MAPを見る
