物件詳細
        
ホーム > 物件詳細
            
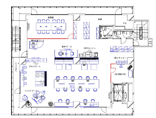
        募集要項
| 階数 | 区画 | 面積 | 賃料 共益費 | 敷金 礼金 | 引渡し時期 引渡し方法 | 
|---|---|---|---|---|---|
| 4階 | 77.19坪(255.18㎡) | 1,273,635円(税込) - | (3ヶ月) - | 即時 事務所仕上げ | 
| 備考 | フリーレント:9カ月 内装費負担:3ヶ月 | 
|---|
物件所在地
この物件について問い合わせする
まずはご相談内容をお送りください。確認後に担当者よりご連絡させていただきます。

 MAPを見る
MAPを見る




 
						 
						