物件詳細
ホーム > 物件詳細
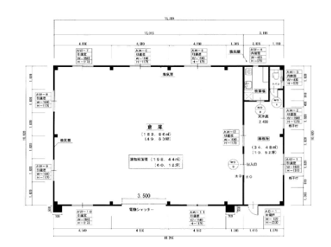
募集要項
| 階数 | 区画 | 面積 | 賃料 共益費 |
敷金 礼金 |
引渡し時期 引渡し方法 |
|---|---|---|---|---|---|
| 1階 | 1 | 55.79坪(184.44㎡) |
440,000円(税込)
- |
(4ヶ月)
- |
即時 現状渡し |
| 備考 |
実測 842.51㎡ (約254.86坪) |
|---|
- 倉庫付き事務所
物件所在地
この物件について問い合わせする
まずはご相談内容をお送りください。確認後に担当者よりご連絡させていただきます。

MAPを見る
