物件詳細
ホーム > 物件詳細
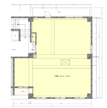
募集要項
| 階数 | 区画 | 面積 | 賃料 共益費 |
敷金 礼金 |
引渡し時期 引渡し方法 |
|---|---|---|---|---|---|
| 2階 | 201 | 31.07坪(102.72㎡) |
515,000円(税込)
11,000円(税込) |
(3ヶ月)
(2ヶ月) |
相談 事務所仕上げ |
| 備考 |
セキュリティ費:月額 11000円 前テナント業種:※パーソナルジム(居抜き相談)、飲食店不可 駐車場1台無料 |
|---|
物件所在地
この物件について問い合わせする
まずはご相談内容をお送りください。確認後に担当者よりご連絡させていただきます。

MAPを見る
