物件詳細
ホーム > 物件詳細
募集要項
| 階数 | 区画 | 面積 | 賃料 共益費 |
敷金 礼金 |
引渡し時期 引渡し方法 |
|---|---|---|---|---|---|
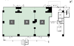
| 1階 | A | 22.56坪(74.59㎡) |
220,000円(税込)
- |
(3ヶ月)
(2ヶ月) |
2026年08月01日以降
スケルトン |
| 備考 |
駐車場最大2台契約可能:9900円(月額)/1台 |
|---|
- 飲食店可
同じ建物の空室案内
| 階 | 区画 | 面積 | 賃料 | 用途 | |
|---|---|---|---|---|---|
| 1階 | ワンフロア | 72.18坪(238.64㎡) | 704,000円 (税込) |
|
|
| 1階 | B | 24.86坪(82.19㎡) | 242,000円 (税込) |
|
|
| 1階 | C | 24.76坪(81.86㎡) | 242,000円 (税込) |
|
|
| 2階 | ワンフロア | 97.73坪(323.1㎡) | 825,000円 (税込) |
|
|
| 2階 | D | 24.21坪(80.04㎡) | 198,000円 (税込) |
|
|
| 2階 | E | 21.05坪(69.6㎡) | 176,000円 (税込) |
|
|
| 2階 | G | 27.78坪(91.86㎡) | 242,000円 (税込) |
|
|
| 2階 | F | 24.68坪(81.6㎡) | 209,000円 (税込) |
|
物件所在地
この物件について問い合わせする
まずはご相談内容をお送りください。確認後に担当者よりご連絡させていただきます。

MAPを見る

