物件詳細
ホーム > 物件詳細
募集要項
| 階数 | 区画 | 面積 | 賃料 共益費 |
敷金 礼金 |
引渡し時期 引渡し方法 |
|---|---|---|---|---|---|
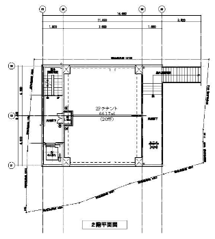
| 2階 | 20.01坪(66.17㎡) |
396,000円(税込)
- |
(6ヶ月)
- |
即時 スケルトン |
| 備考 |
フリーレント期間1ヶ月 |
|---|
- 飲食店可
同じ建物の空室案内
| 階 | 区画 | 面積 | 賃料 | 用途 | |
|---|---|---|---|---|---|
| 1階 | 12.5坪(41.34㎡) | 343,750円 (税込) |
|
物件所在地
この物件について問い合わせする
まずはご相談内容をお送りください。確認後に担当者よりご連絡させていただきます。

MAPを見る
