物件詳細

ホーム > 物件詳細

一覧に戻る

物件No.29112

九電不動産ビル

建物概要

用途 事務所
所在地 福岡市中央区薬院1-13-8   MAPを見る
最寄り駅
バス停
西鉄天神大牟田線 薬院駅 徒歩 5分    駅までMAPを見る
西鉄バス 薬院大通バス停 徒歩 3分    駅までMAPを見る
高速IC
構造 鉄筋コンクリート造 地下1階 ~ 地上5階
築年月 1963[S38]年 12月
駐車場
設備 [エレベーター] 有、[エレベーター] 有/2基、[エアコン] 有、[エアコン] 有/個別、[セキュリティ] 機械警備
備考

募集要項

階数 区画 面積 賃料
共益費
敷金
礼金
引渡し時期
引渡し方法
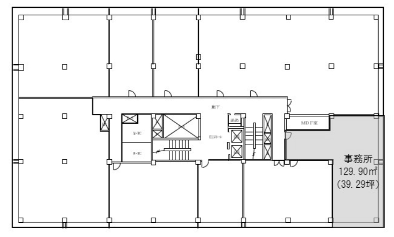
階数 5階 区画 面積 39.29坪(129.88㎡) 賃料
共益費
相談
相談
敷金
礼金
相談
-
引渡し時期
引渡し方法
相談
事務所仕上げ
備考

物件所在地

この物件について問い合わせする

まずはご相談内容をお送りください。確認後に担当者よりご連絡させていただきます。

物件番号
物件名
会社名
お名前
電話番号
メールアドレス
お問い合わせ
内容

この物件を見た人は、こんな物件にも興味を持っています

グランスクエア呉服町
グランスクエア呉服町
  • 432,388円 (税込)
  • 25.36坪(83.85㎡)
  • 福岡市博多区中呉服町6-10
大名古賀店舗
  • 居抜き
  • 飲食店可
大名古賀店舗
  • 231,000円 (税込)
  • 6.35坪(21㎡)
  • 福岡市中央区大名1-9-17
シークエンス原
シークエンス原
  • 411,400円 (税込)
  • 37.37坪(123.56㎡)
  • 福岡市早良区原7-8-2

一覧に戻る