物件詳細
Home > 物件詳細
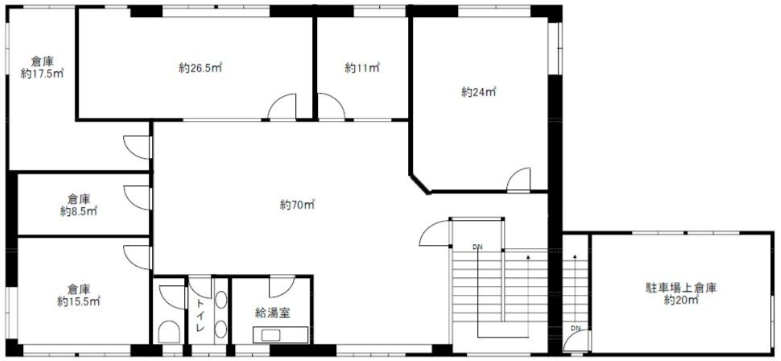
募集要項
| 階数 | 区画 | 面積 | 賃料 共益費 |
敷金 礼金 |
引渡し時期 引渡し方法 |
|---|---|---|---|---|---|
| 1階 〜 2階 | 139.55坪(461.35㎡) |
770,000円(税込)
- |
(6ヶ月)
- |
相談 現状渡し |
| 備考 |
1階部分:216㎡、2階部分:245.35㎡ |
|---|
- ロードサイド
- 一棟貸し
- 倉庫付き事務所
物件所在地
この物件について問い合わせする
まずはご相談内容をお送りください。確認後に担当者よりご連絡させていただきます。

MAPを見る

