物件詳細
ホーム > 物件詳細
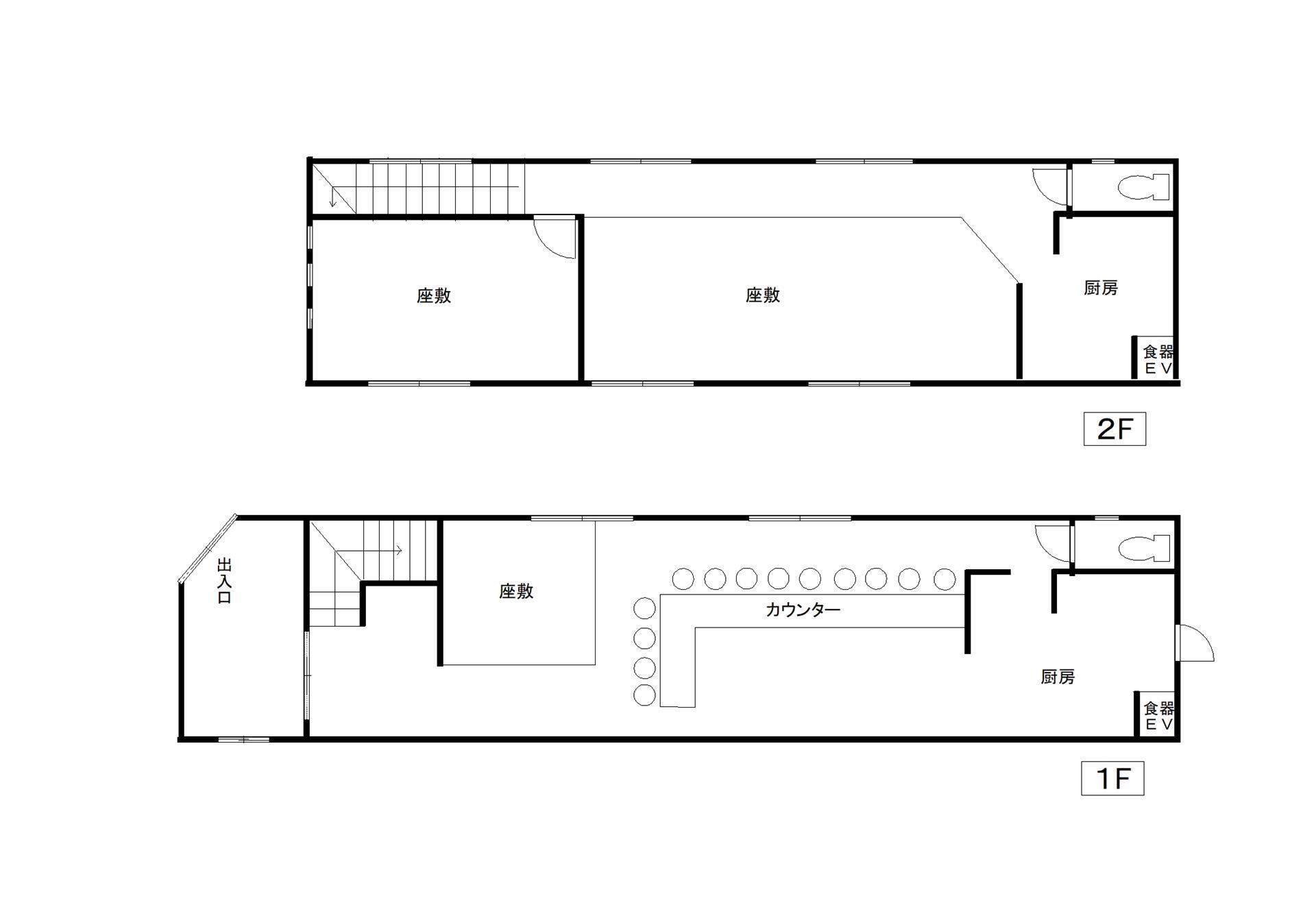
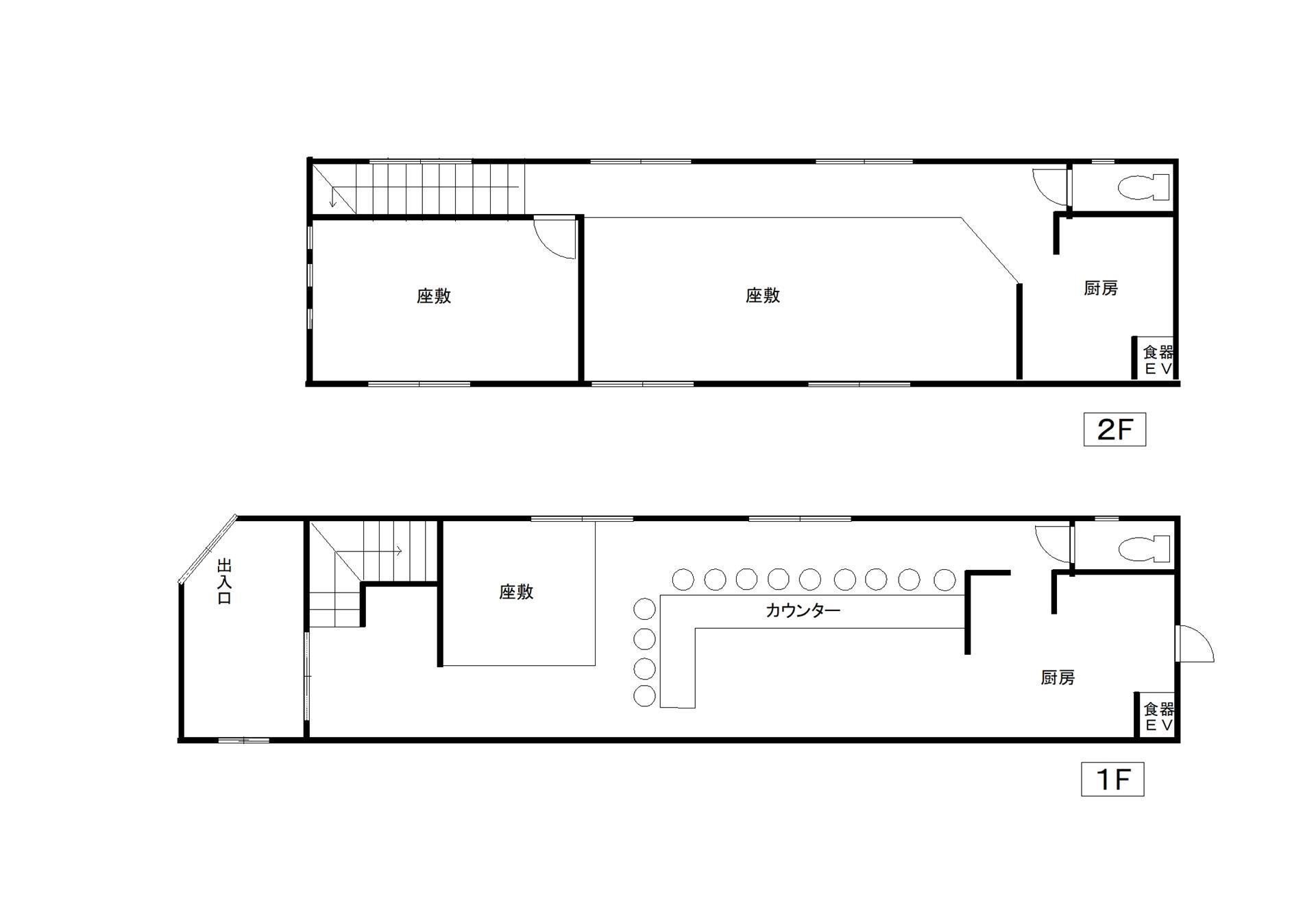
募集要項
| 階数 | 区画 | 面積 | 賃料 共益費 |
敷金 礼金 |
引渡し時期 引渡し方法 |
|---|---|---|---|---|---|
| 1階 | 32.05坪(105.98㎡) |
253,000円(税込)
- |
-
(2ヶ月) |
2026年2月 現状渡し |
| 備考 |
ビルトインエアコン、冷蔵庫、給湯、トイレ2箇所等 プロパンガス |
|---|
- 居抜き
- 飲食店可
物件所在地
この物件について問い合わせする
まずはご相談内容をお送りください。確認後に担当者よりご連絡させていただきます。

MAPを見る



