物件詳細
ホーム > 物件詳細
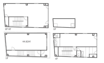
募集要項
| 階数 | 区画 | 面積 | 賃料 共益費 |
敷金 礼金 |
引渡し時期 引渡し方法 |
|---|---|---|---|---|---|
| 1階 〜 5階 | 85.08坪(281.27㎡) |
1,320,000円(税込)
- |
15,000,000円
- |
即時 現状渡し |
| 備考 |
屋上看板使用料:100,000円+税(契約任意) |
|---|
- 一棟貸し
物件所在地
この物件について問い合わせする
まずはご相談内容をお送りください。確認後に担当者よりご連絡させていただきます。

MAPを見る
