物件詳細
ホーム > 物件詳細
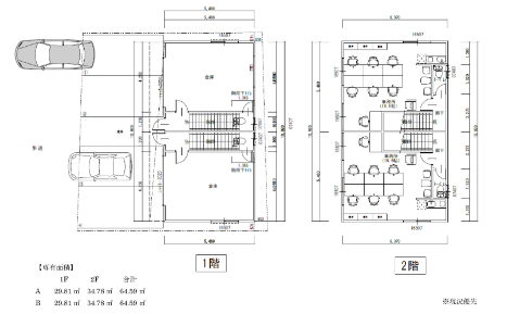
募集要項
| 階数 | 区画 | 面積 | 賃料 共益費 |
敷金 礼金 |
引渡し時期 引渡し方法 |
|---|---|---|---|---|---|
| 1階 〜 2階 | A | 19.53坪(64.59㎡) |
242,000円(税込)
- |
(5ヶ月)
(1ヶ月) |
即時 事務所仕上げ |
| 備考 |
エアコン、給湯、トイレ、トイレ2箇所、プロパンガス 駐車場2台確保 |
|---|
- 倉庫付き事務所
同じ建物の空室案内
| 階 | 区画 | 面積 | 賃料 | 用途 | |
|---|---|---|---|---|---|
| 1階 〜 2階 | B | 19.53坪(64.59㎡) | 242,000円 (税込) |
|
物件所在地
この物件について問い合わせする
まずはご相談内容をお送りください。確認後に担当者よりご連絡させていただきます。

MAPを見る