物件詳細
ホーム > 物件詳細
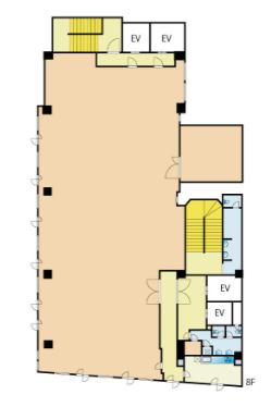
募集要項
| 階数 | 区画 | 面積 | 賃料 共益費 |
敷金 礼金 |
引渡し時期 引渡し方法 |
|---|---|---|---|---|---|
| 8階 | 100.42坪(331.99㎡) |
1,104,730円(税込)
- |
(3ヶ月)
- |
即時 事務所仕上げ |
| 備考 |
フリーレント相談可 |
|---|
同じ建物の空室案内
| 階 | 区画 | 面積 | 賃料 | 用途 | |
|---|---|---|---|---|---|
| 7階 | 74.26坪(245.49㎡) | 816,860円 (税込) |
|
物件所在地
この物件について問い合わせする
まずはご相談内容をお送りください。確認後に担当者よりご連絡させていただきます。

MAPを見る


