物件詳細
ホーム > 物件詳細
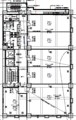
募集要項
| 階数 | 区画 | 面積 | 賃料 共益費 |
敷金 礼金 |
引渡し時期 引渡し方法 |
|---|---|---|---|---|---|
| 8階 | ワンフロアー | 103.34坪(341.64㎡) |
1,963,650円(税込)
- |
-
- |
2026年08月31日以降
相談・協議 |
| 備考 |
|
|---|
物件所在地
この物件について問い合わせする
まずはご相談内容をお送りください。確認後に担当者よりご連絡させていただきます。

MAPを見る

