物件詳細
ホーム > 物件詳細
募集要項
| 階数 | 区画 | 面積 | 賃料 共益費 |
敷金 礼金 |
引渡し時期 引渡し方法 |
|---|---|---|---|---|---|
| 1階 〜 2階 | 112.9坪(373.22㎡) |
990,000円(税込)
- |
(6ヶ月)
- |
即時 事務所仕上げ |
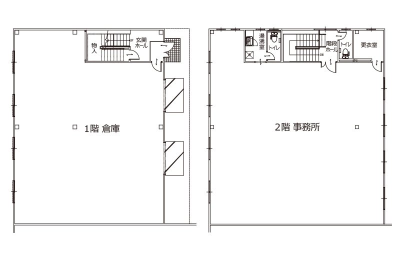
| 備考 |
1F:倉庫 52.1坪 (172.23m²) 2F:事務所 60.8坪 (200.99m²) 敷地内駐車場:14台 |
|---|
- 倉庫付き事務所
物件所在地
この物件について問い合わせする
まずはご相談内容をお送りください。確認後に担当者よりご連絡させていただきます。

MAPを見る
