物件詳細

ホーム > 物件詳細

一覧に戻る

物件No.28930

Pine House

建物概要

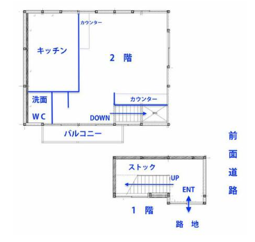
用途 店舗
所在地 福岡市中央区六本松1-7-27   MAPを見る
最寄り駅
バス停
福岡市営地下鉄七隈線 六本松駅 徒歩 5分    駅までMAPを見る
西鉄バス 六本松停 徒歩 5分    駅までMAPを見る
高速IC
構造 木造 地上2階
築年月 9月
駐車場
設備
備考

募集要項

階数 区画 面積 賃料
共益費
敷金
礼金
居抜き料 引渡し時期
引渡し方法
階数 1階 区画 面積 14.67坪(48.5㎡) 賃料
共益費
140,000円(税込)
-
敷金
礼金
-
(2ヶ月)
居抜き料 居抜き料は
お問い合わせください
引渡し時期
引渡し方法
相談
居抜き
備考
  • 居抜き
  • 飲食店可

物件所在地

この物件について問い合わせする

まずはご相談内容をお送りください。確認後に担当者よりご連絡させていただきます。

物件番号
物件名
会社名
お名前
電話番号
メールアドレス
お問い合わせ
内容

この物件を見た人は、こんな物件にも興味を持っています

メルローズ松山
  • 飲食店可
メルローズ松山
  • 165,000円 (税込)
  • 13.92坪(46.03㎡)
  • 福岡市城南区松山2-16-7
城西3丁目新築テナント
  • 飲食店可
城西3丁目新築テナント
  • 440,000円 (税込)
  • 20.01坪(66.17㎡)
  • 福岡市早良区城西3-1-10
城西3丁目新築テナント
  • 飲食店可
城西3丁目新築テナント
  • 343,750円 (税込)
  • 12.5坪(41.34㎡)
  • 福岡市早良区城西3-1-10

一覧に戻る